Коммерческие объекты
Развлекательный центр на базе д/о Торово
Вологодская обл, База Торово (ж/д ст Кошта),
Проектируемое здание развлекательного центра располагается на территории Д/О "Торово" в Вологодской области, Череповецком районе, Нелазское сельское поселение. Застройщик – ПАО "Северсталь".
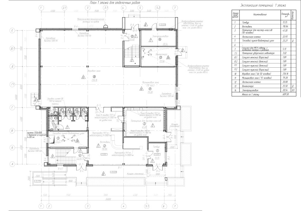
Здание развлекательного центра включает в себя помещения на следующие функциональные зоны:
- входная зона с гардеробной, стойкой администратора, зоной ожидания, санузлами для
взрослых и детей, комнатой матери и ребенка совмещенной с санузлом для МГН;
- игровое пространство первого этажа с разделением по возрастной категории детей;
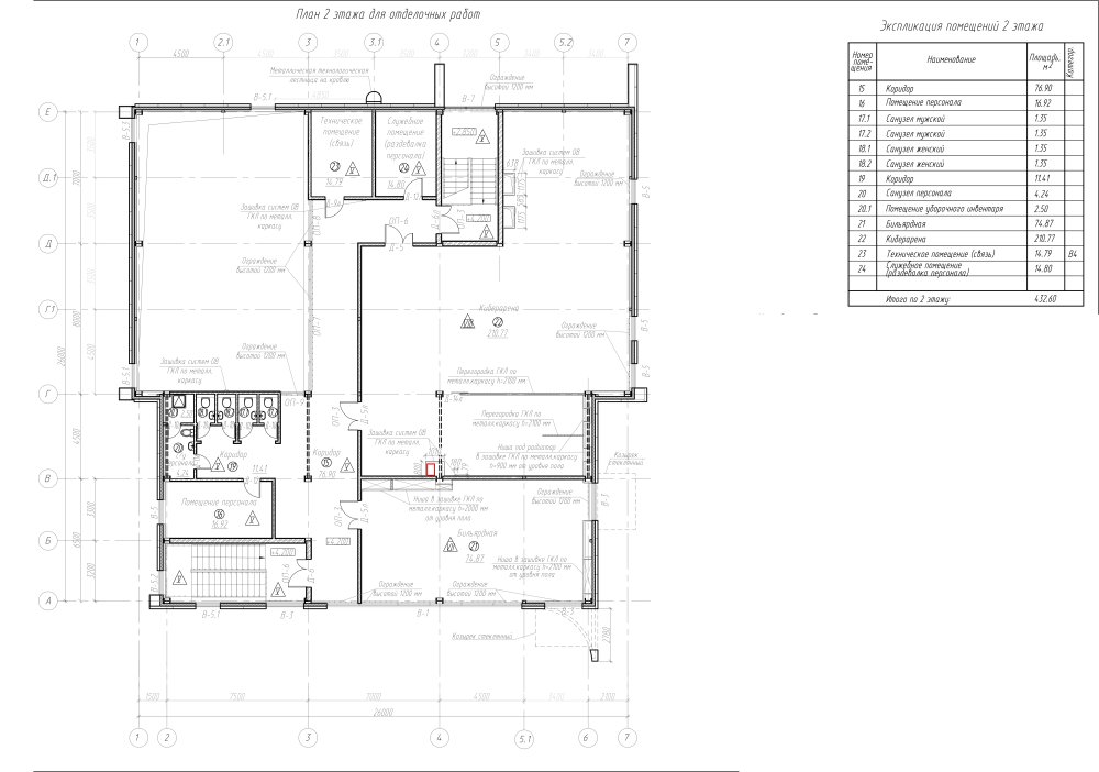
- игровое пространство второго этажа для взрослых и подростков с киберареной и
бильярдной
- помещения технического назначения;
- помещения персонала.
В соответствии с техническим заданием конструктивная схема здания принята проектом из металлокаркаса, наружные стены здания развлекательного центра выполнены из стеновых сэндвич-панелей поэлементной сборки с негорючим минеральным утеплителем толщиной 150 мм. Для наружной отделки стен используются фиброцементные панели скрытого монтажа.
Цветовое решение фасадов здания обусловлено общей концепцией «Краски Севера» окружающей застройки на территории Д/О "Торово".
В качестве цветового акцента используются панели цветов RAL 2000 (желто-оранжевый), RAL 3003 (рубиново-красный), RAL 7021 (черно-серый), RAL 9003 (сигнальный белый). За основной цвет приняты панели цвета RAL 9002(светло-серый).
Импосты витражей из алюминиевого профиля цветов RAL 2000 (желто-оранжевый), RAL 3003 (рубиново-красный), RAL 7021 (черно-серый), наружные металлические двери цвета RAL 7021 (черно-серый).
Цоколь облицовывается обрезным керамогранитом «Про Стоун Антрацит», цвет RAL 7021 (черно-серый).
Площадь: 1112,13 кв.м
Этажность: 2
Вместимость: 113 человек






